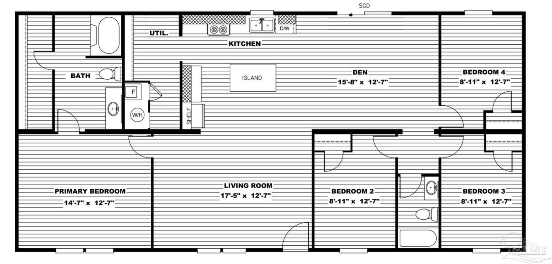
5359 Bodega Dr, Milton FL 32583
Payment calculator
You may also like
Browse allFrequently asked questions
Find fast answers to common questions about our home search and buying process. For more details, contact our team.
When buying a home in Pensacola, consider factors like proximity to schools, work, and amenities, as well as property taxes and the long-term value of the neighborhood. Pensacola offers diverse housing options, from coastal living to suburban communities. At Link Realty Gulf Coast, we guide buyers through understanding local market trends and finding the right fit.
The home-buying process in Gulf Breeze typically begins with securing financing, followed by finding a home that suits your needs. Once you’ve found a property, you’ll make an offer, complete inspections, and finalize the mortgage. Link Realty Gulf Coast helps simplify this process, ensuring you find the perfect Gulf Breeze home while navigating negotiations and paperwork.
Beachfront properties in Pensacola Beach are highly sought after, so working with a local expert is key. Link Realty Gulf Coast has access to the latest listings and can help you act quickly when properties hit the market. We can also guide you through zoning laws, insurance requirements, and property maintenance unique to beachfront homes.
Pace is known for its family-friendly neighborhoods, with highly rated schools, parks, and a close-knit community feel. Some of the best neighborhoods for families include Stonebrook Village and North Harbor. Link Realty Gulf Coast can help you explore these areas, providing insights into school districts, amenities, and property values.
The average home price in Milton varies depending on location, size, and amenities. Currently, homes range from $200,000 to $400,000, with properties near parks or schools generally commanding higher prices. Link Realty Gulf Coast will help you understand market trends and secure the best deal based on your budget and preferences.
Getting pre-approved for a mortgage in Cantonment involves submitting financial documents such as tax returns, bank statements, and credit reports to a lender. Pre-approval helps streamline the buying process and makes you a more attractive buyer. Link Realty Gulf Coast can connect you with trusted local lenders to help you get pre-approved.
Yes, Pensacola offers several first-time homebuyer programs, including down payment assistance and favorable loan terms. These programs can help lower your upfront costs and make homeownership more accessible. Link Realty Gulf Coast will guide you through eligibility requirements and help you take advantage of these programs.
When searching for investment properties in Gulf Breeze, consider factors like location, rental demand, and potential for property appreciation. Gulf Breeze is popular for vacation rentals, making beachfront properties and homes near attractions ideal for investors. Link Realty Gulf Coast provides insights into local rental markets and helps you make informed decisions.
Closing on a home in Pensacola Beach typically takes 30-45 days, depending on the complexity of the transaction and financing. To ensure a smooth closing, it's important to work with local experts familiar with the area. Link Realty Gulf Coast coordinates with lenders, inspectors, and title companies to keep everything on track.
Property taxes in Pace, FL, are relatively moderate compared to other parts of Florida. They are typically calculated based on the assessed value of your home and any applicable exemptions. Link Realty Gulf Coast can help you estimate property taxes for homes you’re interested in, allowing you to factor them into your long-term financial planning.
The ideal time to sell a home in Pensacola often depends on market trends, but typically, spring and summer are the best seasons. Warmer weather brings out more buyers, and families prefer to move during this time. That said, each neighborhood, from Gulf Breeze to Milton, can have unique selling windows, so it's important to consult a local real estate expert to get specific insights about your area.
To price your Gulf Breeze home competitively, a thorough market analysis is essential. Our team at Link Realty Gulf Coast will evaluate recent sales of similar properties in Gulf Breeze, assess your home's condition, and consider neighborhood demand. We aim to set a price that attracts buyers while maximizing your return in this sought-after coastal area.
Homes in Pensacola Beach often attract buyers looking for waterfront properties, modern amenities, and proximity to the ocean. Features like updated kitchens, outdoor living spaces, and energy-efficient systems can increase the value of your property. Link Realty Gulf Coast can help you highlight these features to appeal to buyers in this unique coastal market.
Preparing your home for sale in Pace involves decluttering, making necessary repairs, and staging the property to appeal to local buyers. Since Pace is a family-friendly area, showcasing spaces like family rooms, backyards, and proximity to schools can help attract buyers. We can provide personalized recommendations to help your home shine.
Selling with Link Realty Gulf Coast means working with a team that knows Pensacola, Gulf Breeze, and surrounding areas inside out. We leverage local market expertise, targeted marketing strategies, and strong negotiation skills to ensure your home sells quickly and at the best price. Our local SEO-focused marketing will maximize your listing's visibility to buyers searching in these areas.
Homes in Milton typically sell within 30-60 days, depending on the market, condition of the home, and price point. Homes priced competitively in high-demand areas, like those near local schools and parks, often sell quicker. At Link Realty Gulf Coast we analyze your property's location and market trends to give you a clearer timeframe.
Selling a property in Cantonment involves several steps: determining your home’s value, preparing it for the market, listing it on MLS and other platforms, and negotiating offers. Cantonment has seen steady growth, so it's important to price your property right. Link Realty Gulf Coast will handle all aspects of the process, from listing to closing.
Yes, you can sell a rental property in Pensacola while tenants are still living in it, but it requires careful communication and planning. Florida law provides certain rights to tenants, and Link Realty Gulf Coast will guide you through this process while ensuring minimal disruption to your tenants and potential buyers.
While making repairs can increase the value and appeal of your Gulf Breeze home, it's not always necessary. Link Realty Gulf Coast will evaluate the condition of your home and advise on the most cost-effective repairs to help you get the best price. In some cases, selling "as-is" may be the best strategy for a quick sale.
Receiving multiple offers on your Pensacola Beach property can be exciting, but it’s important to evaluate each one carefully. Link Realty Gulf Coast will help you compare the terms, including price, contingencies, and buyer qualifications, ensuring you select the offer that best meets your needs and timeline.






























